For Sale
To Rent
Residential
Commercial
REF

Apartment in Sliema To Rent

REF: 9646
Property Features:
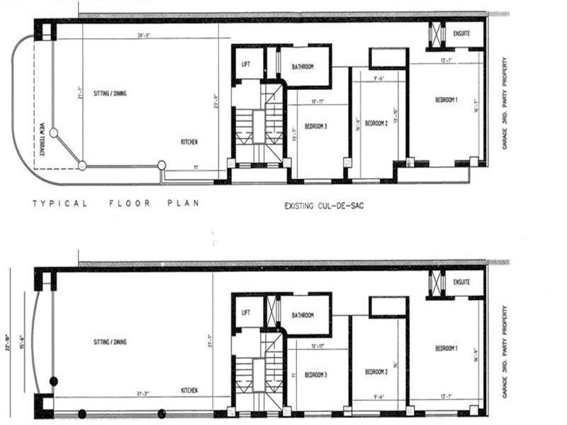
3 Bedrooms 2 Bathrooms 1 Ensuite Internal 165 m2 Terrace 10 m2 Floor Level: 1 Lift View: Sea Finish: Highly Finished

Garage: 1 car, Optional - ask for details

Availability: Available from today
€2,500 monthly

New seafront development of just 8 apartments offering spacious accommodation in access of 165sqm. This corner seafront block is being offered on plan and to be sold luxuriously finished. Layout comprises of a spacious and bright open plan kitchen/living/dining, 3 double bedrooms with main enjoying ensuite facilities, main bathroom and utility room. Sea and coastline views can be enjoyed from its large front corner terrace as well as from all other rooms and offer optional car spaces. This new development offers exceptional payment terms of just 10% deposit and balance on completion making it an ideal investment opportunity.

For availability of this property please contact us directly. All information being given here is subject to change.

Fill in the following form to contact us by email.

@
We use cookies to ensure that we give you the best experience on our website. If you continue to use this website we will assume that you are happy with it.
Should you wish to find out more please follow the provided links: Cookie Policy | Privacy Policy | Disclaimer